fbpx
Finlandia/Helsinki  
K2S Architects

Il laterizio, filtro di luce

Uno speciale componente in laterizio di color bianco avorio è l’elemento di dettaglio con cui i progettisti realizzano il volume in addizione allo storico Paasitorni Hotel di Helsinki. La superficie del nuovo edificio è un brise-soleil che, in virtù del suo andamento sinuoso e della peculiare tessitura muraria, ricorda un merletto, attraverso le cui trame si possono intravvedere i diversi trattamenti della facciata retrostante

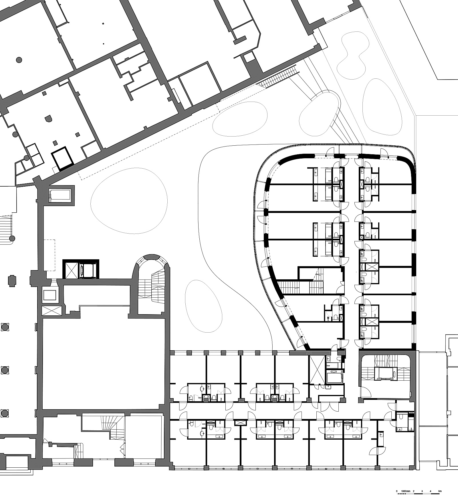
Un nuovo volume color avorio si insinua con la morbidezza di un pizzo delicato tra gli imponenti edifici in granito del Paasitorni Hotel, costruiti in due differenti epoche. Il primo edificio sorge nel 1908 per volere della Associazione dei Lavoratori di Helsinki, che ancora oggi è il committente dell’ampliamento. Con affaccio principale sul mare ed esteso fino a conformare l’angolo dell’isolato urbano, il primo corpo edilizio viene ampliato nel 1950 con un nuovo corpo di fabbrica che va a completare la cortina edilizia verso sud, delineando una corte interna di servizio. 

L’originalità della proposta – firmata da K2S Architects (Kimmo Lintula, Niko Sirola e Mikko Summanen) per il progetto architettonico e da Insinööritoimisto Konstru per il progetto strutturale – è ravvisabile nella scelta di andare a saturare parte dello spazio aperto della corte, apportando invece solo modifiche puntuali sugli edifici storici. 

Le esigenze di ampliamento della dotazione di stanze, di disponibilità di due ampie sale congressi e di nuovi servizi per il ristorante dell’albergo sono quindi state conciliate con il requisito della conservazione dei beni architettonici preesistenti. 

Gli architetti K2S hanno lavorato a questo obiettivo in stretta collaborazione con il National Board of Antiquities e con l’Helsinky City Museum. Il progetto architettonico è stato approvato nel 2008 e i lavori di ammodernamento e ampliamento si sono conclusi nel 2012. Oggi quindi l’albergo ha 170 stanze, molto diversificate a livello di architettura di interni tra loro, in base alle epoche storiche in cui sono state realizzate; coerentemente anche all’esterno si possono leggere i diversi periodi di costruzione dei fabbricati, e il nuovo corpo edlizio non è stato affatto pensato per mimetizzarsi nel complesso precedente, ma per trovare un’armoniosa relazione, fatta essenzialmente di luce e di tonalità. Protagonisti di questo dialogo sono senza dubbio il laterizio di color avorio, la rada tessitura delle superfici, l’andamento curvilineo delle facciate nello spazio e il degradare dei volumi verso il cielo.

Nel volume più aggentante a contatto con il terreno trovano posto le grandi sale congresso volute dall’Associazione dei lavoratori di Helsinki, mentre ai piani superiori vengono allestite le nuove camere dell’albergo. Ognuna di esse, dispone di una loggia esclusiva, ai livelli dal primo fino al quinto, oppure una loggia continua a correre su tutto il perimetro del’edificio, al livello del sesto e ultimo piano.

Nel dettaglio, la soluzione costruttiva adottata da K2S per fissare il rivestimento delle facciate alla sottostruttura metallica, ancorata a sua volta alle solette in cemento armato, è molto ingegnosa, se la si guarda disegnata, quanto semplice ed efficace nella messa in opera. 

Viene spontaneo il riferimento al sistema a secco adottato da Renzo Piano nell’edificio ampliamento dell’Ircam a Parigi nel 1990 e si può notare anche un’analogia di atteggiamento progettuale, ossia nelle modalità con cui l’architetto cerca il dialogo con le preesistenze affidandosi al colore del laterizio e rimarcando invece la contemporaneità dell’intervento tramite l’innovativa tessitura muraria.

In questo caso il linguaggio del Ventunesimo secolo predomina nella misura in cui la facciata ci appare come pura materia, tagliata da nette aperture apparentemente casuali e anche diverse nelle proporzioni, e non vi è nessun benché minimo elemento formale che esalti la tecnica realizzativa così precisa e originale, nè che porga l’accento all’alto livello di prefabbricazione e all’ottimizzazione dell’installazione in sito adottate, per le quali l’opera è stata insignita di un premio speciale.

Alessandra Zanelli
Professore associato, Politecnico di Milano

contentmap_plugin

Ultimi articoli pubblicati


Fjordenhus di Kirk Kapital
Studio Other Spaces
Progettare un headquarter, ovvero un quartiere generale in cui sono collocate le principali funzioni...

Normablok Più S40 MA per la ricostruzione post sisma
Ricostruire i borghi colpiti dal sisma e riportarli al loro caratteristico aspetto originario è pos...

Laterizio polifunzionale
HOOBA Design Group
La reinvenzione del mattone come elemento non solo opaco ma anche filtrante, diventa l’occasione p...

Ruolo del laterizio nell’intervento sulle Procuratie Vecchie
David Chipperfield Architects
L’intervento mescola azioni “rivelatrici” di una serie di trasformazioni avvenute nell’arco ...

Gucci hub
Piuarch
Pregevoli sono i caratteri di recupero archeologico industriale di questo prestigioso sito produttiv...