fbpx
Italia/Napoli  

Embrici e contro-embrici al Teatro San Carlo

La realizzazione di circa 3000 m2 di nuove superfici in laterizio di colore rosso rappresentano l’ultimo stadio di un intervento di restauro e ricostruzione complesso e delicato che ha interessato le strutture di copertura sia della la torre scenica che della sala del teatro lirico più antico d’Europa

Tra il 2008 e il 2010 il teatro San Carlo è stato oggetto di importanti opere di restauro e di riqualificazione con l’intento di riportarlo agli antichi spendori, aggiornandone le dotazioni impiantistiche e ammodernando le funzionalità degli spazi inerenti le macchine sceniche e la regia.

Annoverato tra le eccellenze italiane, il San Carlo è infatti stato inserito tra quelle testimonianze culturali degne di rappresentare l’Italia in occasione delle celebrazioni dei 150 anni dell’Unità d’Italia previsti per il 2011, ottenendo così le risorse necessarie per il progetto e per l’esecuzione dei lavori di restauro e ristrutturazione, secondo le tempistiche previste.

Sotto la direzione artistica dell’architetto Elisabetta Fabbri e la direzione lavori dell’ingegner Enrico Bentivoglio, sono stati condotti differenti tipi di lavori finalizzati a incrementare la produttività delll’antico teatro, nel rispetto delle metodologie del restauro. Tali progetti, per esempio, hanno portato alla realizzazione di una nuova sala prove, all’integrazione dell’aria condizionata sotto le poltrone della platea, e anche al delicato rinnovamento del velarium di velluto rosso voluto dal Niccolini nel 1844 con funzione di ottimizzazione acustica della sala, riproposto identico nella forma e nell’apparenza, ma adeguato agli standard di sicurezza attuali, grazie a un tessuto tecnico anti-fiamma. 

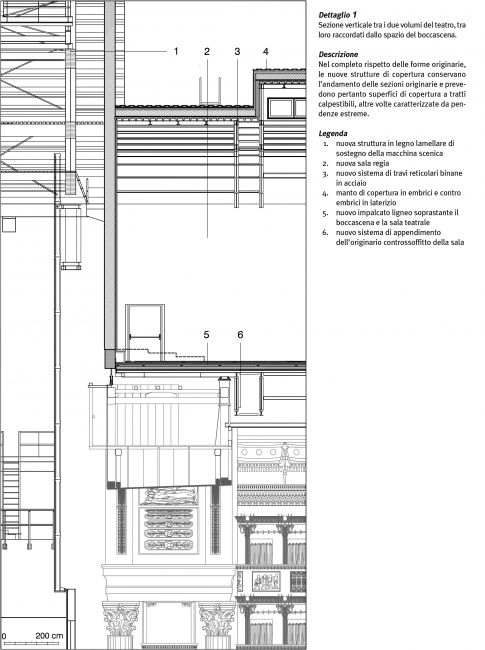
Le opere più consistenti per l’attività artistica futura del teatro ma anche le più complesse dal punto di vista organizzativo e logistico di cantiere sono certamente state quelle inerenti le strutture portanti e i manti di copertura, sia della torre scenica che della grande sala teatrale settecentesca.

Con il progetto preliminare di Enrico Bentivoglio, Elisabetta Fabbri, Domenico Trisciuoglio, Marco Maiorano e Mimmo Paladino e il progetto definitivo ed esecutivo di Michele Fuzio, Pietro D’Ambrosio, Biagio Laurieri, Michele Buzzerio e Giuseppe Carallo, questa parte di lavori è stata realizzata dall’impresa costruttrice Cobar s.r.l di Altamura, sotto la direzione operativa di cantiere di Vito Barozzi, Giuseppe Festa, Michele Fuzio, Michele Pisculli. Tali opere si sono concluse nel 2010, appunto con la posa di circa 3000 m2 di manti in laterizio rosso. Dopo un’accurata indagine diagnostica sulle strutture esistenti che ha fatto emergere situazioni di degrado nelle parti d’opera in calcestruzzo armato e ferro ottocentesche non oltre ripristinabili, e dopo le perizie sul comportamento sismico che hanno giudicato superati anche gli schemi strutturali parzialmente a spinta delle vecchie strutture di sostegno sommitarie dei due volumi del teatro, la committenza e le Sovraintendenze hanno approvato il progetto di ricostruzione delle copertura di entrambi i volumi del teatro: quello destinato alle macchine sceniche e ai vari ballatoi tecnici sospesi sopra il palcoscenico, e quello principale che contiene la sala teatrale, sovrastata a sua volta da una sala delle scenografie, oggi sala regia.

Nel sottocantiere della torre scenica le capriate in calcestruzzo armato sono state sostitute con nuove capriate in legno lamellare, in grado di sostenere il rinnovato manto di copertura così come le ampliate dotazioni sceniche.

Nel sottocantiere della sala teatrale sono state sostituire le vecchie capriate in cemento armato e acciaio con un nuovo sistema di sei travi reticolari binate a sviluppo longitudinale variabile, e ulteriori due reticolari singole a sviluppo costante. Peculiare in questo caso è stato anche lo studio dei nuovi sostegni per il mantenimento del soffitto appeso della sala teatrale e del telo dipinto dal Cammarano. 

Entrambi i sottocantieri hanno previsto compresse procedure di demolizione e asportazione dei materiali vie aerea, mediante bracci gru esterni all’edificio, proprio in virtù del fatto che nessuna finitura o superficie interna poteva essere compromessa nè minimamente invasa da polvere o detriti.

 

Alessandra Zanelli
Professione associato, Politecnico di Milano

 

contentmap_plugin

Ultimi articoli pubblicati


Fjordenhus di Kirk Kapital
Studio Other Spaces
Progettare un headquarter, ovvero un quartiere generale in cui sono collocate le principali funzioni...

Normablok Più S40 MA per la ricostruzione post sisma
Ricostruire i borghi colpiti dal sisma e riportarli al loro caratteristico aspetto originario è pos...

Laterizio polifunzionale
HOOBA Design Group
La reinvenzione del mattone come elemento non solo opaco ma anche filtrante, diventa l’occasione p...

Ruolo del laterizio nell’intervento sulle Procuratie Vecchie
David Chipperfield Architects
L’intervento mescola azioni “rivelatrici” di una serie di trasformazioni avvenute nell’arco ...

Gucci hub
Piuarch
Pregevoli sono i caratteri di recupero archeologico industriale di questo prestigioso sito produttiv...