fbpx
  • Visualizza:
  • Commerciale
  • Pubblico
  • Ospedaliero
  • Religioso
  • Residenziale
  • Scolastico
  • Sportivo
  • Terziario
Belgio/Heule  
Avdk Architecten Vande Kerckhove

Uffici e studio di progettazione Heule

La nuova sede che accoglie le molteplici attività dello studio di architettura Avdk architecten Vande Kerckhove è situata a Heule, un piccolo centro di circa un migliaio di abitanti e uno degli otto arrondissement amministrativi e legali che costituiscono il distretto municipale di Kortrijk. Gli uffici, le aree destinate a mansioni progettuali e gli ampi spazi accessori sono stati collocati all’interno di un vecchio magazzino industriale, opportunamente restaurato e riprogettato, della West-Vlaanderen, la provincia più occidentale delle Fiandre belghe. 

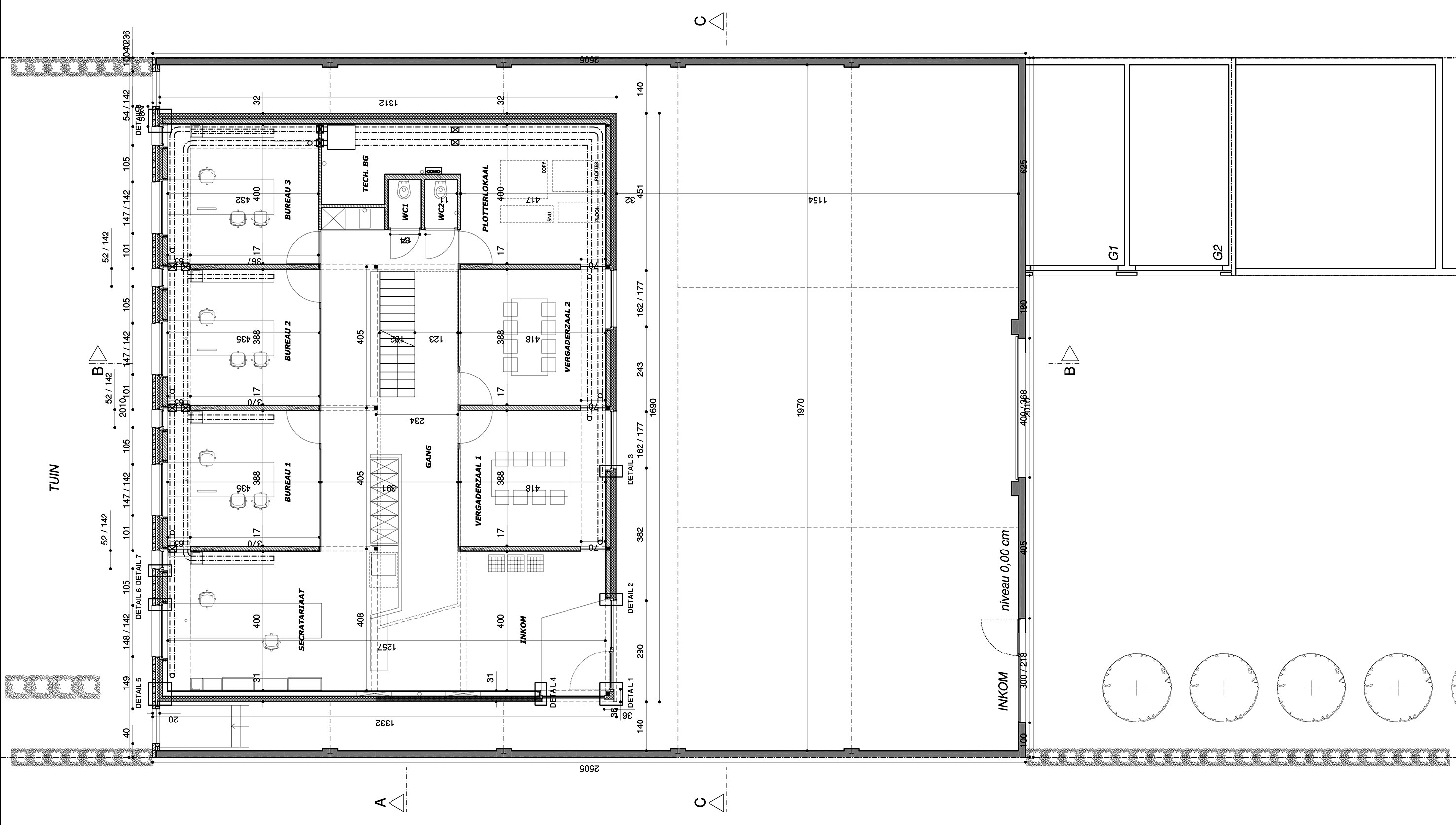
L’edificio, che è stato ufficialmente inaugurato nel 2010, ospita gli attuali «eredi» e prosecutori dell’attività professionale ultratrentennale di Architectenbureau Vande Kerchove ed è stato realizzato dai nuovi partner, architetti e manager, Andie Decock e Benedikt Vanderkerkhove, insieme ai loro collaboratori, una quindicina di persone tra architetti e ingegneri, secondo i rigorosi standard della progettazione passive house. Il fabbricato dell’ex magazzino, situato all’interno di un lotto lungo e stretto, utilizza circa un terzo della sua superficie.

Nella parte iniziale dell’area, a diretto contatto con la strada veicolare d’accesso, sono situati parcheggi, alcuni bassi volumi e box; la parete centrale è occupata interamente dalla mole dell’ex magazzino, mentre la porzione finale, esposta a sud − alla quale si accede solamente attraversando longitudinalmente l’ex manufatto industriale − è attrezzata a giardino. Il vasto volume dell’ex capannone, che occupa circa 450 m2, è caratterizzato da una maglia strutturale regolare in acciaio, da quattro pareti perimetrali in mattoni a vista e da una grande copertura a due falde, alta circa 4 metri, quasi quanto le pareti sottostanti (4,7 m) che la sorreggono. In realtà, solo la metà sud del volume industriale, quella a ridosso dell’area verde, è utilizzata per le esigenze produttive degli Avdk architecten, mentre l’altra porzione, anch’essa restaurata, costituisce una sorta di atrio fuori scala, anticamera coperta dell’ingresso ai nuovi spazi dello studio d’architettura. Così, una volta dentro, dopo aver oltrepassato l’austera facciata originaria realizzata in mattoni, e aver attraversato la parte vuota dell’ex magazzino, ci troviamo di fronte a un’altra «quinta», che ci indica la presenza fisica – come in una specie di «scatole cinesi» − di un nuovo volume retrostante. Più corto dei 17,9 m totali di larghezza del capannone, per lasciare spazio ai due lunghi (oltre 13 m) corridoi laterali che portano al giardino in fondo, il nuovo fronte interno è contraddistinto essenzialmente dalla texture generata dalla disinvolta posa obliqua delle lastre che lo ricoprono, arricchita da tre finestre e da un portale d’ingresso situato nell’angolo. L’insieme è sormontato dalla capriata originaria in acciaio e, ai lati, coadiuvato dalle due alte pareti dell’edificio industriale in mattoni lasciati a vista. Il nuovo volume, che ospita al piano terra essenzialmente alcune piccole sale riunioni, spazi amministrativi, reception, area tecnica, servizi, ecc., è organizzato su due piani. Al piano superiore si accede tramite una scala a una rampa, posta centralmente; ai lati, intorno al vuoto centrale, abbiamo un grande spazio di lavoro comune e una quasi altrettanto ampia sala riunioni.

Per limitare le dispersioni di calore per infiltrazione, all’interno dell’edificio è stata creata una tenuta all’aria ottimale, dalle fondazioni sino ai serramenti, corrispondente a n50. Il raffrescamento passivo dell’edificio è ottenuto dalla combinazione di una elevata inerzia termica della costruzione con la ventilazione notturna, in grado di assicurare un efficace comfort termico interno durante le giornate più calde. 

Inoltre, la ventilazione interna per «effetto camino» è ottimizzata grazie all’automazione di alcuni degli infissi della facciata sud e di quattro abbaini collocati sul tetto. L’impianto di riscaldamento è realizzato con caldaia a condensazione a gas e caloriferi, mentre la ventilazione meccanica controllata integra un recuperatore di calore con efficienza del 90%.

Igor Maglica
PhD, architetto e giornalista


Scheda tecnica

Oggetto: Edificio per uffici
Località: Heule, Belgio
Contractor: Vermeersch, Interproject, Eco-puur
Progetto architettonico: Avdk Architecten Vande Kerchove
Fornitori: Unilin Systems, Heraklith, Vandemoortel
Impianti: Eco-puur, Piet Vandamme
Cronologia: 2010 fine lavori
Fotografie: Dennis De Smet

contentmap_plugin