fbpx
  • Visualizza:
  • Commerciale
  • Pubblico
  • Ospedaliero
  • Religioso
  • Residenziale
  • Scolastico
  • Sportivo
  • Terziario
Regno Unito/Chatham  
Proctor and Matthews Architects

Quartiere Residenziale Di Horsted Park A Chatham

L’ipotesi di costruire un quartiere residenziale ad Horsted Park prende il via agli inizi del nuovo millennio con l’obiettivo di urbanizzare, e in parte riqualificare, un’ampia porzione di Chatham, una piccola città della contea del Kent, in Inghilterra, a circa una ora di viaggio da Londra. L’intervento si colloca in prossimità di Fort Horsted, un presidio militare ottocentesco, oggi classificato come monumento storico, a due miglia a sud dei centri urbani di Chatham e Rochester, in un sito precedentemente occupato dal campus del Mid Kent College. Sia la prima proposta progettuale del 2004 che quella successiva del 2009 furono però respinte a seguito dell’opposizione della comunità locale e dell’amministrazione pubblica, entrambe preoccupate dalla possibile eccessiva urbanizzazione della zona.

Il progetto presentato da Proctor and Matthews, nato sempre a seguito di un’assidua partecipazione della comunità alla fase preliminare di progettazione, venne approvato nel 2010 e i lavori iniziarono un anno più tardi. Le motivazioni che convinsero i residenti ad accettare le ultime proposte progettuali risiedono principalmente nella dislocazione planimetrica degli edifici all’interno del parco, nel linguaggio formale adoperato e nelle tipologie edilizie individuate. Se il parco si caratterizza per la presenza di una sequenza di spazi aperti che si estendono a «dita» tra le abitazioni e che permettono di stabilire una connessione con l’ambiente circostante, le residenze sviluppate dallo studio di architettura sono state concepite come delle cascine adatte a ricreare un ambiente semi-rurale in grado di dialogare con il nuovo paesaggio e con quello esistente.

Prendendo spunto, infatti, dagli edifici vernacolari del Kent, gli architetti hanno progettato una serie di abitazioni disposte a reinterpretare proprio i vecchi insediamenti agricoli creando una sorta di borgo caratterizzato dalla presenza di spazi aperti e chiusi, privati e collettivi. Il programma prevede complessivamente la costruzione di 337 unità residenziali (di cui 154 relative alla fase 1), una zona a carattere commerciale e spazi aperti per oltre il 30% della area totale interessata dall’intervento. 

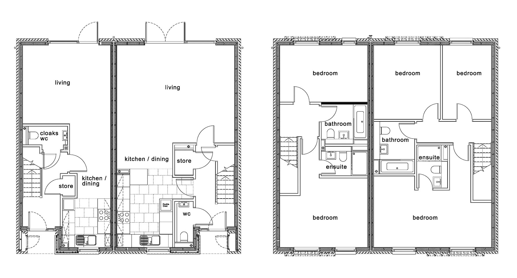
Gli appartamenti hanno una superficie che varia da un minimo di 47 m2 (tipologie a una camera da letto) fino a un massimo di 150 m2 (tipologia a quattro camere da letto) anche se prevalentemente sono state realizzate le tipologie con tre camere da letto di circa 120 m2 di superficie utile. Gli edifici residenziali sono suddivisi in 4 tipologie: la n. 1 è una tipologia monofamiliare di 3 piani fuori terra con un soggiorno, una cucina/sala da pranzo parzialmente verandata che si affaccia su un cortile privato in adiacenza e un piccolo servizio igienico al piano terra e le camere da letto e ulteriori servizi igienici ai piani superiori. 

La tipologia n. 2 ha una disposizione simile ma si sviluppa per soli due piani fuori terra, mentre le tipologie n. 3 e n. 4, sempre di due piani fuori terra, prevedono anche esse la zona giorno al piano terra e la zona notte ai piani superiori ma sono accoppiate in sequenza tra loro in una sorta di villa bi-familiare e prevedono, ognuna, il cortile in continuità sul retro. Ad alcune unità abitative è affiancato il box auto a un piano con copertura piana. Oltre alle residenze private, all’interno del lotto sono previsti anche due blocchi di edifici pubblici adibiti a residenze per anziani. Il primo blocco, disposto a U, contiene circa 40 appartamenti a una e due camere da letto, con al piano terra una mensa/ristorante, un parrucchiere (entrambi accessibili anche alla comunità di Chatham), un soggiorno comune, una sala hobby, un giardino e spazi per il personale. Gli edifici hanno una forma pressoché identica, caratterizzata da una copertura a doppia falda inclinata di notevole pendenza, e finiture superficiali molto simili tra loro. 

Il trattamento dei prospetti e l’uso dei materiali, comunque, sebbene garantiscano l’unitarietà di tutto l’intervento, variano leggermente in funzione delle differenti tipologie edilizie. Il laterizio faccia a vista, alternato in alcuni casi con il legno e con la ceramica, è il materiale che connota fortemente tutto l’intervento conferisce un immagine massiva ai fabbricati, sebbene sia usato soltanto come cortina esterna. I mattoni di laterizio della facciata appesa sono posati sia tradizionalmente a correre, a una testa di spessore, sia sfalsati di 90 gradi. La tessitura muraria si caratterizza quindi per un interessante gioco di aggetti che crea delle porzioni di prospetto in rilievo in grado di generare alternanze di pieni e di vuoti in prossimità delle grandi aperture al piano primo. 

Le residenze per anziani sono caratterizzate dall’uso del mattone a vista al piano terra, mentre ai piani superiori le facciate sono rivestite con assi di legno montate in orizzontale di colore tenue e dalla presenza di balconi, con struttura in acciaio. Ancora una volta i materiali della tradizione, e in primis il laterizio, reinterpretati in chiave contemporanea, svolgono la duplice funzione di richiamare le architetture della tradizione, mitigando l’impatto urbanistico che un intervento di tali dimensioni rischiava di avere soprattutto in una zona a sviluppo prevalentemente rurale, e di ricreare negli utenti finali, soprattutto se anziani, quel senso di serenità, di sicurezza e di appartenenza a una comunità indispensabili per incrementare la qualità della vita.

Claudio Piferi
Architetto, Phd, Università degli Studi di Firenze


Scheda tecnica

Oggetto: Quartiere residenziale Horsted Park
Località: Chatham, Regno Unito
Committente: Countryside Properties Ltd
Progetto architettonico: Proctor and Matthews Architects
Progetto strutturale: Richard Jackson Ltd
Cronologia: 2011-2013
Superficie: 8.1 ettari
Fotografie: Tim Crocker

contentmap_plugin