fbpx
  • Visualizza:
  • Commerciale
  • Pubblico
  • Ospedaliero
  • Religioso
  • Residenziale
  • Scolastico
  • Sportivo
  • Terziario
Germania/Zehlendorf  
MGF Architekten

Istituto penitenziario Düppel a Zehlendorf Berlino

In una società contemporanea dove la maggioranza dell’opinione pubblica è sempre più restia a considerare la detenzione come un periodo temporale da trascorrere in un ambiente recintato predisposto solamente all’espiazione della pena assegnata, piuttosto che come una grossa opportunità per riabilitare individui che a un certo punto della loro vita hanno commesso degli errori, il progetto qui presentato costituisce un valido esempio di come possa essere realizzato e organizzato un «carcere modello».

Lungi da esempi architettonici settecenteschi che hanno ispirato il gran numero di tipologie carceraie tuttora in uso, il Justizvollzugsanstalt (JVA) Düppel – il centro di detenzione situato nel quartiere Düppel, nella località Zehlendorf facente parte della vasta area sud-ovest della città-stato di Berlino – cerca di costituire un nuovo modello progettuale senza, però, assomigliare troppo a una «qualsiasi» casa dello studente o ad alcuni esempi d’architettura alberghiera di massa.

La realizzazione, opera di MGF Architekten, uno studio d’architettura di Stoccarda diretto da quattro soci nati tra il 1959 e il 1971- Armin Günster, Hartmut Fuchs, Josef Hämmerl e Jan Kliebe -, è il risultato della vittoria al concorso indetto nel 2005 dal Dipartimento del Senato per lo sviluppo urbano e l’ambiente (Senatsverwaltung für Stadtentwicklung und Umwelt) del Land di Berlino. Il prodotto finale si distacca inevitabilmente da analoghi esempi contemporanei, forse più per la sua generale immagine estetica che per innovazioni tipologiche, vista anche la difficoltà di un tema funzionale così «rigido» e particolare.

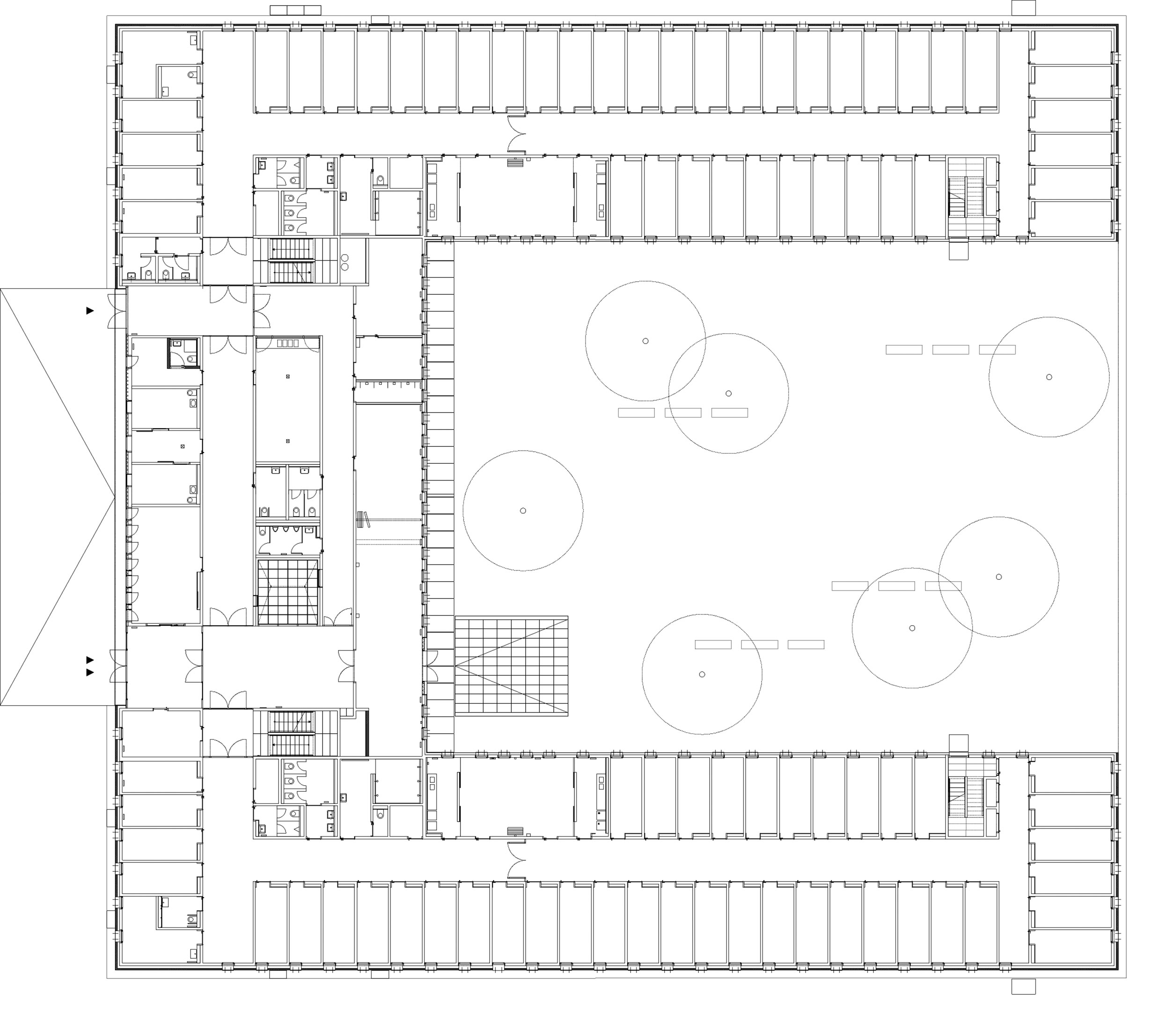
All’interno di un’area di forma trapezoidale che accoglie il nuovo complesso carcerario, il volume principale, quello che alloggia e custodisce i detenuti, adotta le forme planimetriche tradizionali di un edificio a corte aperta. I suoi due «bracci» della pianta a «U» sono rivolti verso le zone verdi sul retro del complesso, destinate al lavoro e alla ricreazione, mentre la parte centrale, che include anche l’entrata principale, è orientata verso il lato sud-ovest di un’elementare recinzione metallica, che delimita l’intera superficie dell’istituto penitenziario.

Il volume, alto tre piani, custodisce i 252 detenuti (capienza massima) in altrettante stanze-celle ed è completato da sale comuni, uffici amministrativi e servizi sanitari e tecnici. Le singole celle, di dimensioni 2,1 x 5,5 metri, sono disposte in gran parte lungo i lati di un corridoio centrale, raggruppate in gruppi di 42 per «braccio» (due per livello), a formare singolarmente un Wohngruppe, una «casa famiglia» costituita da un’area comune, due cucine, un soggiorno e bagno.

L’intero edificio è stato costruito in cemento armato (per ragioni di sicurezza), ma tutti i fronti esterni dell’impianto a corte (la facciata principale e le quattro perimetrali) sono stati rivestiti in mattoni (in modo da creare «pareti ventilate») di colori leggermente diversi (marrone scuro, rossiccio, grigio) producendo un piacevole effetto di texture d’ispirazione «classico-rustica». 

I larghi paramenti murari sono interrotti con regolarità da numerose strisce di finestre lunghe e strette, contraddistinte da originali persiane in acciaio spazzolato, suddivise da due parti rotatorie. Il senso di ordine trasmesso dai «vuoti» e dai «pieni» dei prospetti esterni, unito alla scelta di un materiale così tradizionale e durevole come il mattone, sono attenuati dalla finitura in stucco chiaro delle tre facciate rivolte verso la corte interna. Esse conferiscono all’insieme architettonico una gradevole impronta di contemporaneità e contribuiscono a mitigare un certo senso di austera rigidità che aleggia sul complesso. 

All’interno dell’edificio, la maggior parte delle aree è caratterizzata da pareti di cemento lasciato a vista e dagli alti serramenti (porte da pavimento a soffitto) realizzati in legno non lavorato.

Il sistema penitenziario complessivo di questa prigione modello, destinato alla custodia di detenuti «minori», è infine completato da un edificio garage-officina, da un negozio (blumenshop) – propaggine di una serra attigua esistente, aperto al pubblico e dedicato alla vendita di fiori e di verdure stagionali – e da ampi spazi verdi, coltivati e non.

Igor Maglica
Phd, architetto e giornalista


Scheda tecnica

Oggetto: Istutito penitenziario
Località: Zehlendorf Berlino
Committente: Land Berlin, Senatsverwaltung für Stadtentwicklung und Umwelt, Hermann Josef Pohlmann
Progetto architettonico: MGF Architekten
Responsabile del progetto: Jan Kliebe
Site manager: Thomas Kuhn
Gestione progetto: Bernhard Tenschert
Gare d’appalto e Dl: Einsbisneun Architekten, Peter Flucke
Project managment: GMS Architekten, Thomas Götze
Progetto strutturale: IBB, Oskar Danai
Installazioni esterne: Neher Landschaftsarchitektur, Sindelfingen
Opere strutturali: Bateg Ingenieurbau GmbH
Cronologia: 2005 concorso; 2008-10 realizzazione
Dimensioni: 19.300 m2 superficie dell’area; 3.200 m2 sup. edificata
Costo complessivo: 13,2 milioni euro
Fotografie: Christian Richters

contentmap_plugin