fbpx
  • Visualizza:
  • Commerciale
  • Pubblico
  • Ospedaliero
  • Religioso
  • Residenziale
  • Scolastico
  • Sportivo
  • Terziario
Belgio/Ronse  
Volt Architecten

Progetto Rodebroek a Ronse

Ronse (in francese Renaix) è un Comune belga situato nella regione fiamminga, con una città industriale di oltre 24.000 abitanti, cresciuta notevolmente all’inizio del 20° secolo, che oggi risente della crisi del settore tessile. Gli anni di declino economico possono avere però risvolti parzialmente positivi, quando interventi di ristrutturazione, guidati in modo opportuno, anche senza ricorrere a drastiche demolizioni e radicali sostituzioni, sono attuati in modo originale e corretto. Infatti, le infrastrutture industriali in disuso riescono a vivere una seconda giovinezza, grazie alla fantasia di giovani architetti che trasforma, per esempio, un complesso produttivo in un «quartiere modello».

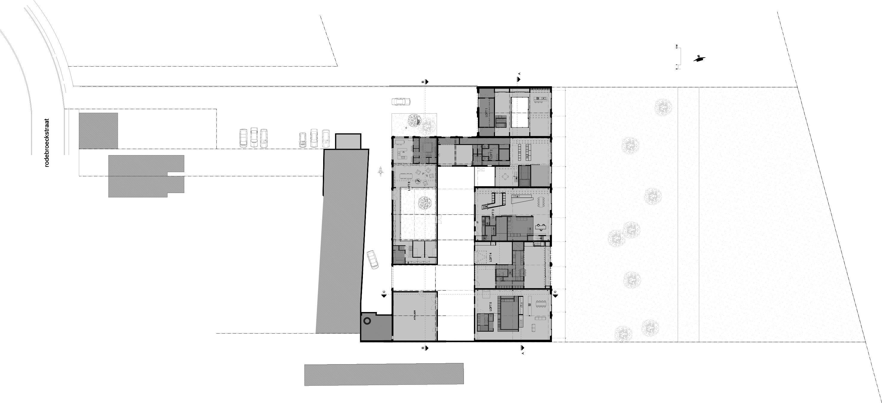
Volt Architecten è un gruppo di quattro professionisti che (dal 2000) ha realizzato varie opere nelle Fiandre, Anversa e Brabante. Il progetto qui presentato, selezionato dalla giuria del premio belga per l’Architettura e l’Energia, indetto dalla reale federazione delle società di architettura del Belgio, vede organizzati, in modo esemplare, sei alloggi, un laboratorio e due uffici, all’interno dei contorni delle mura di una fabbrica, che in origine consisteva in una serie di corpi, coperti da dieci capriate a shed.

Eliminando la porzione di una campata centrale, il nuovo disegno vede ricavato un cortile interno, intorno al quale si organizzano tutte le unità immobiliari, per fungere da elemento di connessione e di circolazione tra le parti. Dietro di esso, infatti, si affaccia un sistema variato di alloggi e ambienti, diversi per superficie, con locali soppalcati, una terrazza coperta, un patio, un garage. Le grandi sale sono state divise in blocchi autonomi, ma è stata mantenuta l’unitarietà di insieme del manufatto, consentendo agli utenti la partecipazione a una «vita di gruppo», che si svolge principalmente nella strada interna. Sul retro, la stecca principale si affaccia invece sul territorio coltivato e sul paesaggio pianeggiante, punteggiato di semplici case a schiera e di qualche altro capannone industriale.

Il complesso che ne risulta si distingue per compattezza e semplicità; ricrea l’armonia vitale della fattoria; si raffronta, per esempio, all’impianto così ben sperimentato del tipo della tipica cascina lombarda. La scelta dei materiali da utilizzare per la ristrutturazione è stata poi compiuta coerentemente, rispettando la preesistenza e il contesto; adattandosi allo schema strutturale con coperture a shed; conservando il carattere industriale e di essenzialità di questo tipo di fabbrica. 

Gli elementi del volume originale (i mattoni, la struttura del tetto) sono stati conservati; le tegole, in buona parte di recupero, sono state utilizzate anche per i nuovi tamponamenti delle pareti rivolte al cortile; il legno, in doghe verticali, è stato usato per rivestire le porzioni inferiori delle facciate del cortile e in altre parti in cui gli utenti si rapportano al paesaggio. Le travi reticolari in acciaio e le colonne in ghisa, che scandiscono il ritmo regolare della planimetria, non sono state sostituite; ogni ambiente e ogni alloggio, pensato per famiglie numerose, bisognose di molto spazio, ove i bambini possano giocare in comunità, a contatto con l’esterno e con la natura, si mostrano variati spazialmente e tecnologicamente.

Nella realizzazione del progetto, il primo passo compiuto ha riguardato l’organizzazione di un piano spaziale, che rendesse possibile generare un valido sistema distributivo della fabbrica ristrutturata e che consentisse ulteriori sviluppi per il frazionamento interno. In una seconda fase, è stata messa punto la tecnologia necessaria al trattamento del guscio degli edifici e al rapporto tra i manufatti costruiti, la corte e le aree esterne. Contemporaneamente, come terza fase, è stato stabilito il numero delle abitazioni e degli altri locali perimetrati.  

Roberto Gamba
Architetto, libero professionista


Scheda tecnica

Oggetto: ristrutturazione di una fabbrica tessile in un gruppo di 6 appartamenti, uffici e spazi comuni
Località: Ronse (B)
Committente: Van Driessche-Sorgeloos – Johan & Isabel en Van Ongeval-Van Driessche Wim & Mimi
Progetto architettonico: Volt Architecten Thierry Langeraert, Tom Verhaegen, Geert Bourdeaud’hui, Steven Verbeke – Voltarchitecten cvba – Gent, in collaborazione con Bert Michels
Progetto strutturale: Stabitec
Realizzazione: fondazioni: Kimaud bvba, Zingem; murature: Rimbaut costruzioni bvba, Ronse; carpenteria: Jost Sa, Geraardsbergen; coperture: Goeminne nv, Zingem; infissi: Alu Stevens bvba, Geraardsbergen – Aluvera, Oudenaarde

contentmap_plugin