fbpx
  • Visualizza:
  • Commerciale
  • Pubblico
  • Ospedaliero
  • Religioso
  • Residenziale
  • Scolastico
  • Sportivo
  • Terziario
Italia/Venezia  
Cino Zucchi Architetti

Edificio residenziale G1-G2 Isola della Giudecca, Venezia

In seguito alla vittoria a un concorso a inviti, indetto, nel 1995, da un operatore privato in collaborazione con il Comune di Venezia, allo studio Cino Zucchi Architetti, che disegnò il masterplan generale dell’area, fu conferito l’incarico di progettare ben cinque edifici dell’intero intervento, di cui quattro (D, B, G1-G2, E1) ex novo e uno (A2-A3) di riconversione di un fabbricato industriale. Così, i due volumi che compongono l’edificio G1-G2, qui illustrato, in realtà fanno parte del gruppo dei cinque singoli interventi contigui, o forse sarebbe meglio dire “di un unico grande progetto” realizzato sull’area dismessa dell’isola della Giudecca.

Ciò significa che, sì, gli edifici G1 e G2 sono portatori di una loro specificità architettonica, riferita in primo luogo al lotto in cui sorgono, ma, anche, che il progetto rientra in un disegno più ampio, quello dell’intera area ex Junghans oggetto del concorso; e che, infine, a loro volta, vanno inquadrati in un contesto più generale riguardante tutti gli interventi edilizi costruiti in un contesto come quello veneziano, con il suo humus storico, così particolare e ricco di spunti. Il programma di recupero urbano disegnato da Zucchi per l’area ex Junghans cerca di stabilire un dialogo con il tessuto urbano presente sull’isola, rispettando la maggior parte delle antiche giaciture e degli allineamenti, senza, però, rinunciare a fornire una sua interpretazione personale, ritenuta più contemporanea e consona per quel tipo di intervento.

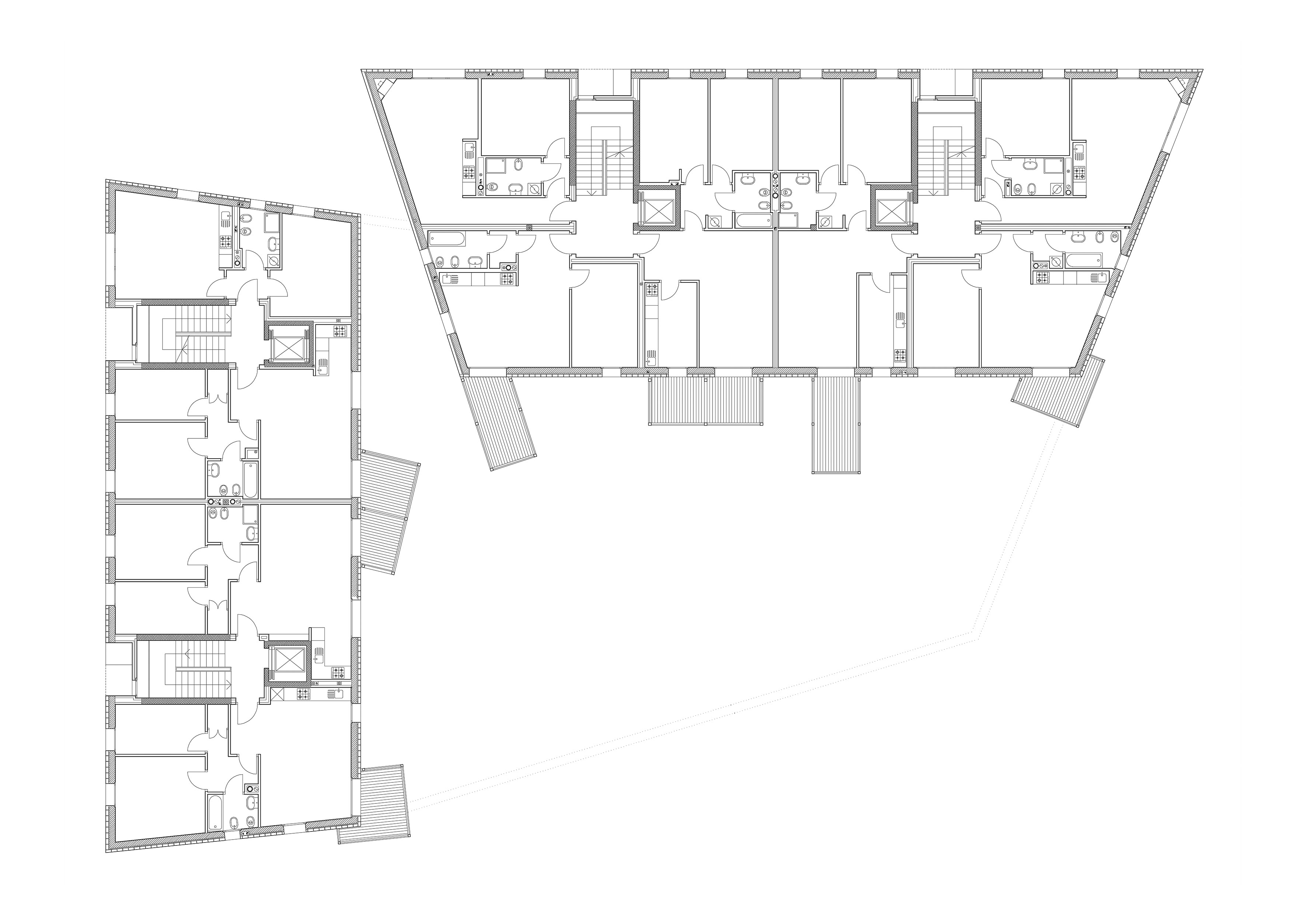
Questo lo porta a realizzare nei cinque interventi edilizi (anche se uno è di riconversione) soluzioni progettuali originali, non ortodosse, una specie di summa tra l’innovazione tecnologica, tipologica e figurativa e la tradizione, tra il nuovo (sperimentazione) e il vecchio (preesistenze), offrendo di fatto esempi concreti su come intervenire a Venezia. I due volumi, che insieme compongono l’edificio G1-G2, sono stati posizionati lungo i perimetri nord e ovest di un isolato di forma tendente al rettangolare, che occupa la porzione sud-ovest dell’area ex Junghans, nella zona centrale dell’isola.
I due corpi edilizi principali, staccati tra di loro, ma uniti dai muri perimetrali realizzati in mattoni, formano insieme una “L” che si affaccia sull’edilizia storica esistente (ovest) e di nuova costruzione (nord). Gli altri due lati lasciati liberi, contrassegnati dai muri perimetrali, sono circondati dai canali presenti all’interno dell’area, che permettono anche un accesso diretto dal mare. Nello spazio del cortile condominiale è presente un giardino comune, percepibile attraverso lo scorcio libero lasciato tra i due volumi, che contrassegna l’entrata principale, e anche da lontano dalla Laguna.
Alti quattro piani, gli edifici sono stati realizzati in muratura portante e quasi tutte le superfici dei fronti − ad eccezione di alcune parti del basamento, in pietra e dalle nicchie intonacate, che indicano i retrostanti corpi scala − sono state lasciate con i mattoni in vista.

I fronti, a differenza delle piante degli alloggi di taglio tradizionale, alternano porzioni in cui le finestre e le portefinestre dei differenti livelli sono sovrapposte verticalmente tra di loro con quelle in cui risultano palesemente sfalsate. Inoltre, i prospetti dei due fronti interni, che s’affacciano sul giardino comune, sono movimentati dalla presenza dalle 6 “torri” − realizzate in acciaio e legno, di dimensioni e con inclinazioni diverse rispetto all’ortogonalità della facciata – che richiamano le costruzioni dei pescatori locali e le gru presenti in queste zone dell’isola.
Tutto questo, a prima vista, fa sembrare gli edifici G1 e G2 molto simili tra loro, anche se in realtà essi presentano diverse profondità dei corpi di fabbrica, un differente numero di alloggi per piano tipo (6 e 4 per piano) e i loro rispettivi fronti minori seguono angolazioni distinte. La copertura a falde viene in gran parte delle vedute (dipende dalla posizione) seminascosta dietro i parapetti dei coronamenti e così l’edificio appare come se avesse il tetto piano, un elemento architettonico che lo fa risaltare ancora di più rispetto al resto degli edifici circostanti.

Igor Maglica
Phd architetto e giornalista


Scheda tecnica

Oggetto: Edificio residenziale G1-G2 area ex-Junghans
Località: Giudecca, Venezia, Italia
Committente: Judeca Nova s.p.a
Progetto architettonico: Cino Zucchi Architetti
Collaboratori: Cino Zucchi, Pietro Nicolini, Ida Origgi, Franco Tagliabue con Pietro Bagnoli, Mariavera Chiari, Carlotta Garretti, Caroline King, Cristina Margarini, Matteo Moretti, Pilar Marti Rodrigo, Stefano Vaghi
Prestazioni: Concorso a inviti – Primo premio, Progetto preliminare, definitivo, esecutivo, direzione artistica
Direttore lavori: Paolo De Luigi – One Works
Impresa di costruzione: ICCEM costruzioni
Cronologia: 1999-2003 (progettazione-costruzione)
Dimensioni: 1.418,5 m² (sup. fondiaria); 3.204 m² (slp); 9.606 m3 (volume)
Costo di costruzione: 2.608.000 €
Fotografie: Cino Zucchi Architetti

contentmap_plugin