fbpx
  • Visualizza:
  • Commerciale
  • Pubblico
  • Ospedaliero
  • Religioso
  • Residenziale
  • Scolastico
  • Sportivo
  • Terziario
Svezia/Stoccolma  
Johan Celsing

Nuovo crematorio al Cimitero del Bosco, Stoccolma

Non deve essere stato facile per Johan Celsing – noto architetto svedese, autore di numerose opere architettoniche di qualità, tra le quali la Chiesa ad Årsta, Stoccolma (Costruire in laterizio n. 149), ma anche del saggio teorico “The Robust, the Sincer” (Costruire in laterizio n. 168) – doversi confrontare con una delle più celebri realizzazioni di architettura moderna, lo Skogskyrkogården (il Cimitero del Bosco), progettata tra il 1917 e il 1940 da Gunnar Asplund e Sigurd Lewerentz e, per di più, dal 1994 iscritta nell’elenco del Patrimonio Culturale dell’Umanità dell’Unesco.

Nonostante ciò, sembra che, all’ora di assegnare il motto al progetto presentato nel 2009 al concorso per la costruzione del nuovo crematorio nel Cimitero del Bosco, i suoi propositi progettuali su come attuare in un simile contesto “monumentale” fossero ormai chiari e ben definiti. Il motto prescelto “A stone in the Forest” ci indica come avesse deciso di assegnare la massima importanza al “fattore naturale” dell’area cimiteriale – anch’essa patrimonio dell’Umanità, grazie alla presenza di numerose specie arboree locali –, guarda caso lo stesso “fattore” che, oltre alle indiscusse qualità architettoniche, ha contribuito in maniera determinante alla vittoria del progetto dei due illustri predecessori.
Lo Skogskyrkogården di Asplund e Lewerentz rappresenta tutt’ora un esempio di perfetto connubio tra un’architettura, opera costruita dall’uomo (non importa quale sia la sua funzione), e la natura del luogo in cui si interviene, all’epoca un’area boschiva di circa 85 ettari, acquistata dalla municipalità a Enskede, a sud della capitale svedese, per ovviare alla mancanza di adeguati spazi per le sepolture. Celsing ha compreso l’importanza di un approccio progettuale così impostato ed ha presentato un’opera che cerca di interpretare lo spirito secolare del luogo, salvaguardando, innanzitutto, il rapporto con il bosco presente nell’area. Il motto “Una pietra nella foresta” sottintende tutto ciò: non una scelta “mimetica” dettata dalla paura di confrontarsi con i due maestri dell’inizio secolo, ma una decisione architettonica ben ponderata, volta alla delicatezza e al rispetto, inserita in maniera armoniosa nella natura e tra le opere preesistenti del Cimitero del Bosco.
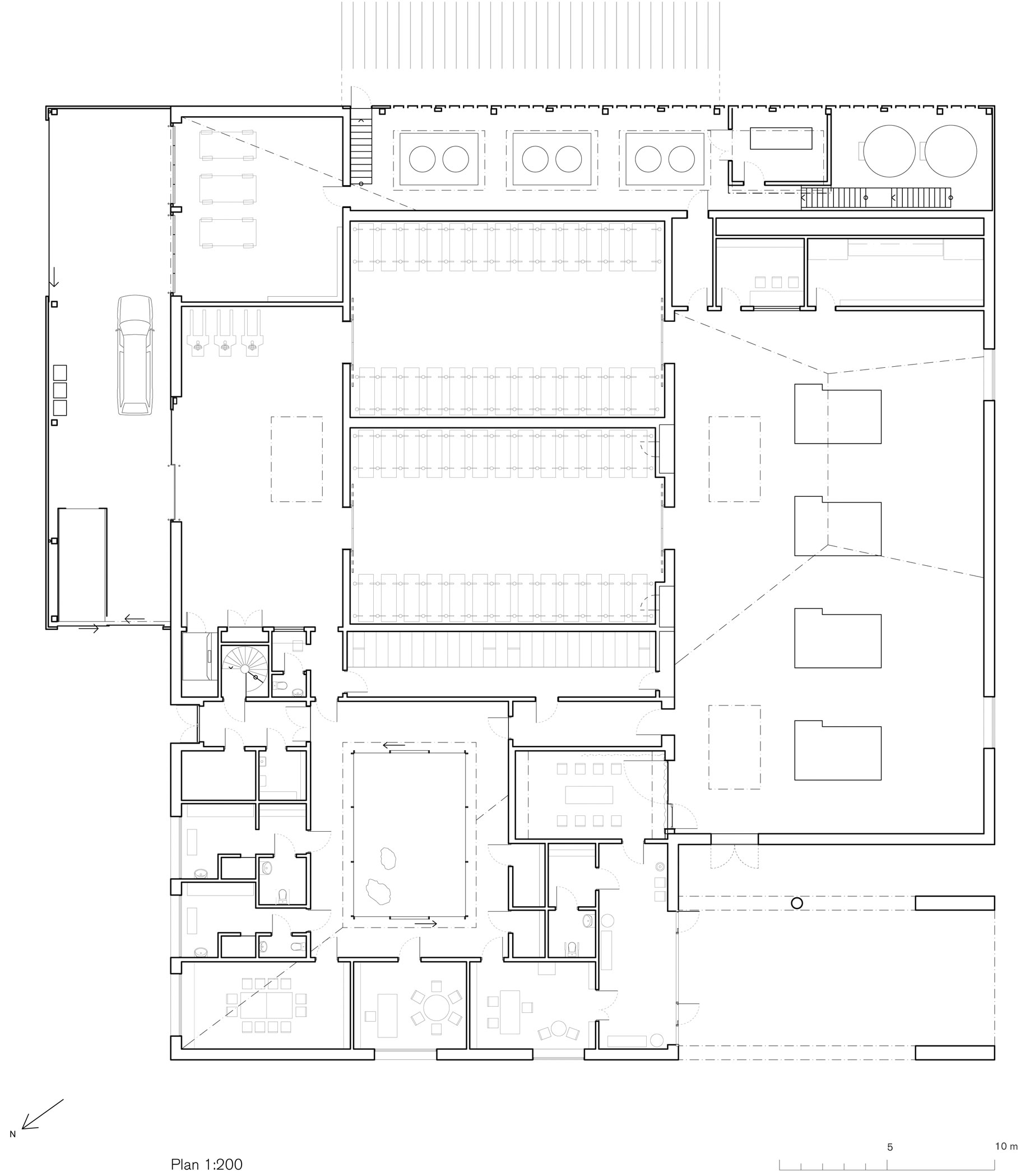
Il nuovo crematorio, anche se situato a circa 150 metri dal volume storico – progettato da Asplund e terminato nel 1940, formato dal crematorio, dalle tre cappelle (della Fede, della Speranza e della Santa Croce) e dalla grande croce in granito –, non gli fa alcun riferimento, ma, anzi, visto dall’alto, dà come l’impressione di voler racchiudere in un unico blocco autonomo (la “pietra” del motto) tutte le funzioni richieste dal bando.
Il volume realizzato è un organismo architettonico compatto, di forma quadrata (circa 43 metri per lato), che segue e interpreta la topografia del terreno, realizzato quasi esclusivamente in mattoni faccia a vista (le quattro facciate esterne, la copertura e alcune pareti interne).

Il mattone è stato scelto per le sue caratteristiche materiche e anche per il colore, prediligendo una tonalità la più simile a quella dei tronchi degli alberi adiacenti. Invece, per la malta dei giunti è stato utilizzato un cemento danese all-white, particolarmente bianco, affinché – una volta smantellate le casseforme e in assenza di trattamenti – le pareti e la copertura manifestino “un sottile segno palpabile del processo di costruzione”.
Il crematorio costruito rispetta tutte i parametri funzionali e tecnici di cui un organismo contemporaneo del genere, che garantisce le 8.000 e più cremazioni all’anno, deve tenere conto, quali la conformità con gli ultimi regolamenti ambientali europei (le emissioni rilasciate in atmosfera, il livello minimo di rumore, un moderno sistema di recupero dell’energia termica) e i più alti standard in termini di sicurezza e di salute sul lavoro. La porzione prettamente funzionale dell’edificio, che riguarda oltre allo spazio per i forni crematori anche la gestione e la movimentazione dei feretri, occupa oltre i due terzi della superficie della pianta e caratterizza almeno due fronti del volume: quelli sud-ovest e sud est.
Invece, dalla parte opposta sono situati locali destinati al personale e agli uffici, insieme a una piccola zona dedicata ai parenti del defunto, che includono una sala d’attesa e una stanza adibita alla cerimonia di commiato.
Così, l’edificio, nonostante una forma esteriore compatta, mantiene al suo interno tre funzioni e i relativi spazi coabitanti insieme: quella pubblica, quella produttiva e quella dedicata al personale.
È quest’ultima che custodisce uno spazio privato, sorprendente e poetico: un piccolo cortile interno, a cielo aperto, riservato ai soli dipendenti del crematorio.
Ed è cosi che, in questo edificio-organismo particolare in cui convivono, arrivando a sfiorarsi in alcuni momenti, la vita quotidiana e la morte, il progettista ha voluto omaggiare quelli che vi lavorano, creando un luogo di relax e di riposo, una specie di oasi dedicata soltanto ai vivi.

Igor Maglica
Phd, architetto e giornalista


Scheda tecnica

 

Oggetto: Nuovo Crematorio al Cimitero del Bosco
Località: Sockenvägen 492, Stockholm, Svezia
Committente: The Stockholms Cemetery Committee
Progetto architettonico: Johan Celsing, Responsible architect
Project team Johan Celsing Arkitektkontor: Stefan Andersson, Göran Marklund, Elisabet Bernsveden, Sven Etzler, Eyvind Bergström, Ibb Berglund, Tommy Carlsson, Kristina Dalberg, Marcus Eliasson, Milo Lavén, Sabina Liew, Thomas Marcks, Anna Ryf, Carl Toråker, Carl Wärn
Landscape architect: Rita Illien, Müller Illien Landschaftsarchitekten GmH
Progetto strutturale: Tyréns AB
Progetto elettrico: Sonny Svenson Konsult AB
Progetto acustico: Akustikon AB
Cronologia: 2009, vittoria al concorso; 2013, fine lavori
Superficie complessiva: 3.000 m2, superficie lorda
Fotografie: Ioana Marinescu, Erik Hugoson