fbpx
  • Visualizza:
  • Commerciale
  • Pubblico
  • Ospedaliero
  • Religioso
  • Residenziale
  • Scolastico
  • Sportivo
  • Terziario
Francia/Huningue  
Dominique Coulon & associés

Residenza per anziani La Dunette

A Huningue, un piccolo comune, di circa settemila abitanti, situato nel territorio francese di una singolare triangolazione geografica formatasi nel corso della storia tra tre Stati confinanti, la Francia, la Germania e la Svizzera, è stata inaugurata, nel dicembre
2017, una nuova struttura che raccoglie al suo interno diversi alloggi e servizi per anziani. L’area su cui sorge è periferica rispetto alla città (che, a sua volta, fa parte della conurbazione di Basilea, Svizzera) e si affaccia sul corso del fiume Reno, con vista sulla Germania.
Opera dello studio di architettura Dominique Coulon & associés di Strasburgo, questa residenza collettiva è il risultato di un concorso di progettazione bandito, nel 2013, dall’amministrazione comunale, sua attuale proprietaria e gestrice. I progetti dello studio Coulon, riferiti in prevalenza a strutture pubbliche, si distinguono per una grande qualità spaziale interna, un sapiente utilizzo della luce naturale, delle geometrie
compositive e il cromatismo. Nell’opera di Huningue, in più, viene sfruttata progettualmente la particolare situazione dell’area – il cui lato est prospetta sui paesaggi fluviali offerti dal Reno – affinché i residenti e i visitatori della struttura possano usufruire delle vedute del fiume movimentate da imbarcazioni che lo attraversano.
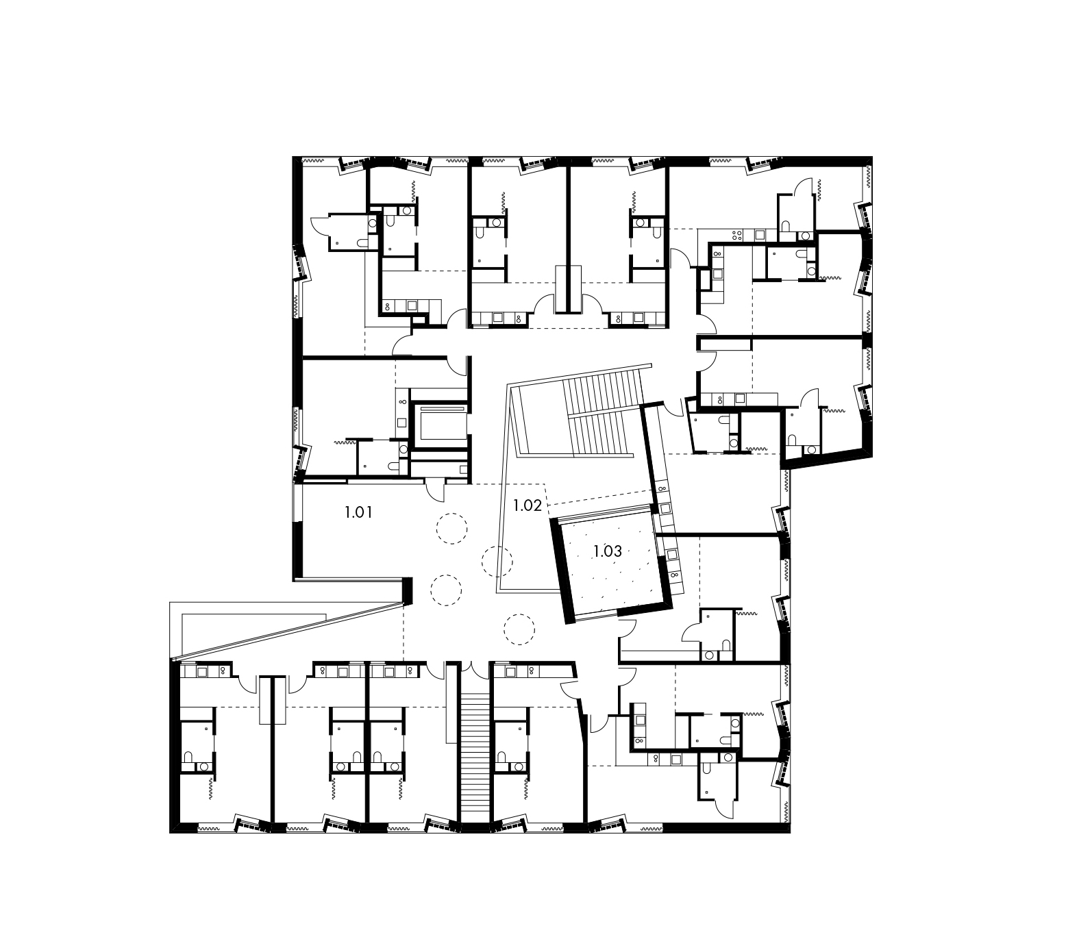
Il nuovo volume presenta una pianta di forma sostanzialmente quadrata, suddivisa in due parti, di cui una (la porzione nord) è stata leggermente traslata verso il fiume, a est, anche in virtù delle indicazioni provenienti dalla conformazione dell’area (a “L”), che invitavano a posizionare l’accesso principale, carrabile e pedonale, sul fronte ovest.
La residenza è formata da 22 unità abitative, di 50 m2 ciascuna, suddivise in zona giorno, bagno e ambiente notte, ospitanti complessivamente 24 residenti, la cui età varia dai 62 agli 84 anni, giudicati sufficientemente “mobili” e non affetti da demenza senile. Oltre agli alloggi, distribuiti lungo i due piani dell’edificio (6 al piano terra e 16 al primo piano), fanno parte del centro molte altre strutture atte a favorire le relazioni tra i residenti, tra cui un ristorante, un soggiorno comune, una sala computer, un laboratorio per gli hobby, un orto, un’area per il gioco delle bocce. I progettisti scrivono: “Gli spazi abitativi collettivi sono i più generosi possibili, con abbondante luce naturale. Abbiamo progettato luoghi che incoraggiano gli scambi e l’interazione sociale”. Infatti, l’opera è stata denominata semplicemente logements pour personnes âgées, cioè, alloggi per anziani, a voler sottolineare la differenza del suo modello abitativo destinato ai soli residenti in relativamente buone condizioni fisiche. Attraverso l’entrata vetrata sul fronte ovest, i residenti e i visitatori vengono immersi all’interno di una vasta hall, uno spazio centrale trasparente e permeabile, caratterizzato dall’abbondanza di luce naturale proveniente dall’alto, dalle numerose e ampie superfici (calpestabili e verticali) di colore rosso tenue e dalla presenza di un forte elemento architettonico, una generosa scala che invita alla mobilità e alla socialità, da preferire all’ascensore deliberatamente seminascosto. Il cromatismo tendente al rosso tenue, la cui presenza si diffonde, in modalità più o meno pronunciata, da tutte le superfici (esterne ed interne) della residenza per anziani, trova il suo fulcro nell’ambiente della hall centrale, dove il piano orizzontale, contraddistinto da una moltitudine di piastrelle in terracotta, si fonde in un tutt’uno con le pareti verticali tinteggiate di rosso. Questa omogeneizzazione cromatica viene sapientemente vivacizzata dalla leggera differenza di tonalità rossa proveniente dalle singole piastrelle in terracotta, di forma quadrata e posate non sfalsate tra di loro. Inoltre, al piano terra, seguendo la sequenza dell’asse trasversale ovest-est, ingresso-hall centrale-uscita-terrazza all’aperto, si entra inevitabilmente, attraverso la seconda vetrata, posta sul fronte est, in contatto diretto (visivo) con l’area posteriore non coperta dell’edificio, la terrazza affacciata sul Reno.
È l’elemento della scala che costituisce il fulcro architettonico e sociale intorno al quale si sviluppa l’organizzazione spaziale dell’intera struttura residenziale, con le sue generose dimensioni e la sua presenza, ma anche con il dettaglio della panchina sul pianerottolo per il riposo e la conversazione. Al piano superiore, i 16 alloggi, dislocati lungo i perimetri esterni, sono disposti internamente intorno alla scala centrale, all’area comune di soggiorno, attrezzata con un camino, e al volume bianco di un piccolo patio sospeso sulla hall sottostante. Tutti gli appartamenti dispongono di almeno una finestra esterna e di una più piccola, interna, in prossimità dello spazio dedicato alla cottura. 
I quattro fronti esterni della residenza di Huningue, eccetto le parti vetrate, sono stati rivestiti in mattoni, di tipo “artigianale, non standard, irregolare e occasionalmente deforme”, di colore rosso abbinato alle superfici cementizie e ceramiche, interne ed esterne, della stessa tonalità. I mattoni sono stati impiegati seguendo differenti tecniche di posa, tra cui quelle tradizionali, quelle a piani sfalsati e di e di schermatura, tipo brise soleil, quest’ultima utilizzata, nei prospetti degli alloggi, come elemento architettonico di “rottura” (semitrasparente e su porzioni inclinate di parete) di fianco a una finestra “normale”. Ciò conferisce all’intero involucro esterno della residenza una piacevole immagine non statica, texturizzata. L’impiego del mattone sembra sia stato dettato anche dalla storia di questa parte industriale del fiume e, infine, dal fatto che trasmette un’immagine di solidità e durabilità.

Igor Maglica,
PhD, architetto e giornalista


Scheda tecnica

 

Oggetto: Residenza per anziani La Dunette
Località: Huningue, Francia
Committente: Ville de Huningue
Progetto architettonico: Dominique Coulon & associés - Dominique Coulon, Olivier Nicollas, Gautier Duthoit
Progetto strutturale: Batiserf Ingénierie
Collaboratori: Javier Gigosos-Ruipérez, Diego Bastos-Romero
Concorso: Gautier Duthoit
Supervisione del cantiere: Olivier Poulat
Progetto idraulico meccanico: Artelia
Paesaggio: Bruno Kubler
Superficie: 3.932 m2 
Costo complessivo: 4.000.000 €
Fotografie: Eugeni Pons