fbpx
  • Visualizza:
  • Commerciale
  • Pubblico
  • Ospedaliero
  • Religioso
  • Residenziale
  • Scolastico
  • Sportivo
  • Terziario
Spagna/Siviglia  
AF6 Arquitectos

Centro Ceramica Triana a Siviglia

Triana è uno dei quartieri più antichi di Siviglia: situato sulla riva destra del fiume Guadalquivir, deve il suo nome alla colonia romana fondata dall’imperatore Traiano (53-117 d.C.), nativo della vicina Italica così come l’imperatore Publio Elio Traiano Adriano (76-138 d.C.). Triana è un quartiere piccolo e chiuso, un’area urbana complessa in cui si mescolano cortili, laboratori e case popolari. Nel rione coesistono lavori artigianali (la ceramica) e attività artistiche (il flamenco) che si identificano fortemente con il territorio e che si riflettono chiaramente nelle vivaci vie cittadine. Il profilo di Triana è segnato dall’imponente Chiesa di Santa Ana, la più antica cattedrale di Siviglia dedicata alla santa protettrice dei marinai, voluta nel 1276 da Re Alfonso X e ricostruita dopo il terremoto di Lisbona del 1755.

È proprio dalla Chiesa di Santa Ana che prende il nome la più grande fabbrica di azulejos dell’Andalusia, stabilimento che produceva le meravigliose piastrelle di ceramica smaltate e decorate diffusesi nella penisola iberica sotto l’influenza musulmana (il termine deriva dall’arabo az-zulaiy, «pietra lucidata»). 

Tale produzione è stata per secoli la principale attività artigianale tanto che il suo sviluppo ha condizionato la crescita della stessa Triana, stabilendo un forte legame tra il vicinato e l’attività ceramica.

La fabbrica di Ceramica Santa Ana è stata attiva fino alla fine del Novecento con una struttura che comprendeva sette fornaci, pozzi, laboratori, magazzini, mulini e cisterne dei pigmenti. Rilievi archeologici hanno permesso di rinvenire i resti di altre otto fornaci, la più antica delle quali era in uso già alla fine del Cinquecento. Esternamente, il complesso mostra un’immagine eterogenea che ci narra una storia strettamente legata alla cultura di Triana (industria ceramica, commercio e residenze).

Con l’obiettivo di sottolinearne l’importanza per Siviglia è stato deciso di trasformare il vecchio stabilimento di produzione in un centro nevralgico di accoglienza e interpretazione degli itinerari turistici del quartiere di Triana, oltre che spazi per le attività produttive e commerciali della stessa fabbrica Santa Ana. Il Complesso si integra nella fitta trama urbana di Siviglia generando, con i nuovi volumi che si adattano perfettamente a quelli esistenti, un paesaggio di grande ricchezza spaziale: tale complesso equilibrio non è percepibile dall’esterno ma può essere scoperto solo dopo aver superato l’ingresso. Il progetto si sviluppa attraverso tre diversi edifici collegati tra loro: il primo ospita l’accesso al Centro Ceramico, è rivestito con piastrelle e forma l’angolo che si affaccia sulla piazzetta Altozano; il secondo edificio, più basso, ha un aspetto austero e industriale; il terzo edificio presenta un secondo ingresso indipendente.

L’intera struttura si articola su due livelli di cui il primo destinato a una mostra permanente che consente di visitare anche gli scavi archeologici e il secondo riservato alle esposizioni temporanee e a un centro di documentazione specializzato. 

Una piccola porzione, collocata sull’angolo di calle Antillano Campos, si innalza sino al terzo livello ed è destinata alla libreria.Gli spazi interni non sono determinati da scelte formali, ancorché condizionate dagli spazi esistenti, bensì dal percorso ininterrotto che guida il visitatore attraverso le diverse fasi di vita dei prodotti ceramici, dalla produzione alla vendita.Il risultato è, al piano terra, uno spazio labirintico che evidenzia la persistenza di tutti gli elementi (mattoni, legno, cenere, fumo, rumori) presenti in uno stabilimento di produzione e, al secondo piano, uno spazio più armonioso e regolare. Al centro del complesso, un vecchio edificio in mattoni pieni faccia a vista, originariamente destinato alle operazioni di decorazione, è destinato alle esposizioni temporanee.

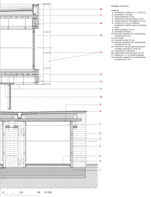
L’elemento che più colpisce è certamente l’involucro. Le pareti perimetrali sono caratterizzate da un doppio paramento in cui quello esterno, con prevalente funzione di gestire l’irraggiamento solare, è costituito da una sottostruttura in acciaio galvanizzato che sostiene degli elementi in terracotta cilindrici di quattro differenti diametri. Collocati secondo un ordine apparentemente casuale, gli elementi ceramici sono impiegati in modo inedito, lasciando intravedere nuove potenzialità espressive per effetto della reinterpretazione di un prodotto storico nella pratica contemporanea. 

Alla texture si affida, in genere, il compito di esprimere l’idea interpretativa e restitutiva del materiale da parte del progettista: attraverso il tessuto narrativo delle texture, i cinque giovani progettisti dello Studio AF6 trasformano l’elemento in cotto dalla sua naturale staticità in un elemento dinamico che supera le canoniche regole costruttive.

Adolfo F. L. Baratta
Ricercatore, Università Roma Tre


Scheda tecnica

Oggetto: Centro Ceramica Triana
Località: Siviglia (E)
Committente: Consorzio del Turismo di Siviglia
Progetto architettonico: AF6 Arquitectos (Miguel Hernández Valencia, Esther López Martín, Juliane Potter, Francisco José Domínguez Saborido, Ángel González Aguilar)
Collaboratori: Angélica Cortés, Ana Blanco, Elías Pérez, Rubén Ingelmo, Reyes López
Archeologo: Miguel Ángel García
Impresa edile: UTE Condisa-ALEA Global
Cronologia: 2009 (concorso); 2009-2010 (progetto); 2011-2014 (costruzione)
Superficie: 2.241 m2
Costo complessivo: 3.500.000 euro
Fotografie: Jesús Granada

contentmap_plugin