fbpx
  • Visualizza:
  • Commerciale
  • Pubblico
  • Ospedaliero
  • Religioso
  • Residenziale
  • Scolastico
  • Sportivo
  • Terziario
Paesi Bassi/Haarlem  
Bolles + Wilson architects

Raakspoort – Municipio e cinema multisala Haarlem

Haarlem, una volta strenuo baluardo del Protestantesimo ed esuberante centro urbano, oggi sembra avere perso la sua polarità e si configura prevalentemente come una tranquilla cittadina alle porte di Amsterdam. Se, da un lato, l’assenza di consistenti interventi di trasformazione urbana ha contribuito a tenere ai margini la città da processi di maggiore protagonismo che caratterizzano altri luoghi in Olanda, dall’altro ha consentito di preservarne l’aura, impreziosita da un centro storico intatto, dalla rete di canali ancora in uso e da un paesaggio diffusamente dominato dai caldi cromatismi del laterizio faccia a vista. 

Realizzare un’opera ex novo in un contesto così storicamente connotato e caratterizzato da una struttura edilizia minuta richiede una profonda sensibilità compositiva, soprattutto se la scala dell’intervento si spinge alla dimensione dell’isolato urbano.

Lo studio Bolles + Wilson ha saputo intraprendere brillantemente la sfida realizzando nel cuore della città un complesso che ospita la nuova sede del municipio – che raccoglie tutti i servizi comunali prima distribuiti in città – un cinema multisala e un parcheggio interrato. 

L’edificio si colloca su un importante asse di transito da cui avviene, a nord-ovest, il principale accesso pedonale e carrabile e sul quale prospetta il fronte più rappresentativo, dominato dalla torre dell’orologio richiesta esplicitamente dall’Amministrazione Comunale e ispirata a Dudok. A est, invece, il complesso sembra abbandonare la sua vocazione istituzionale per abbracciare una dimensione più intima e raccolta, raccordandosi alla struttura di quartiere attraverso una nuova piazza: una stanza «a cielo aperto» su cui prospettano ristoranti e piccole birrerie. 

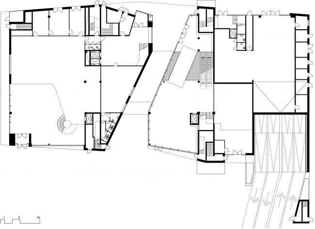
Il fabbricato è connesso alla rete urbana circostante tramite un percorso pedonale diagonale che lo attraversa rendendolo permeabile e definendone in modo chiaro l’impianto planimetrico: il «varco» nella poderosa quinta muraria distingue, infatti, funzionalmente due blocchi al piano terra, quello a nord che ospita l’accesso agli uffici municipali e quello a sud che inquadra l’ingresso al cinema. 

L’edificio si distribuisce su tre livelli interrati e sei fuori terra: ai tre livelli interrati si trovano il parcheggio e un complesso di 8 sale cinematografiche; ai sei livelli superiori si trovano gli uffici municipali. 

Il «segno» grafico diagonale che definisce il percorso di attraversamento pedonale al piano terra rimane un leitmotiv ai piani superiori, trasformandosi in un vuoto attorno a cui si sviluppa il circuito distributivo rettangolare di accesso agli open spaces degli uffici.

Nonostante il complesso si configuri, per la sua dimensione imponente e monolitica, come un «baluardo» fortificato, la volumetria si presenta particolarmente dinamica e articolata in modo da interrompere la compattezza dei fronti e da ridurne di conseguenza l’impatto visivo.

Seguendo la consolidata tradizione costruttiva olandese, l’edificio è connotato da un sapiente utilizzo del laterizio faccia a vista come «protagonista» nella caratterizzazione delle facciate. 

In particolare, in ragione della vasta estensione superficiale dei fronti, il laterizio svolge un ruolo essenziale nell’animare i prospetti grazie all’utilizzo di textures differenziate tese a evitare il rischio di ripetitività che potrebbe derivare dall’utilizzo alla macro – scala di un unico materiale costruttivo. A vaste campiture di laterizio di colore scuro, caratterizzate da forti effetti chiaroscurali dovuti alla ritmica delle fasce orizzontali aggettanti, si alternano zone complanari dai toni più chiari che incorniciano le aperture e propongono articolate geometrie di facciata. 

Elementi lapidei, scultorei e metallici provenienti dall’edificio del XIX che originariamente insisteva sull’area di intervento, poi demolito, vengono riproposti come inserti integrati nella nuova architettura e sospesi ai fronti, come insegna l’esperienza scarpiana di Castelvecchio: la rievocazione del passato, declinata nelle puntuali citazioni, suggerisce una pluralità di storie e racconti e favorisce una vivace lettura «multi-livello» delle facciate.

Un’architettura vigorosa ed eminentemente «urbana», come nella migliore consuetudine olandese, non solo nel senso delle dimensioni dell’intervento ma anche e soprattutto di quella particolare «gentilezza» con cui l’opera ha saputo raccordarsi allo spirito del luogo.

Chiara Testoni
Architetto, dottoranda in Tecnologia dell’Architettura, Università di Ferrara


Scheda tecnica

Oggetto: Raakspoort – City Hall and Bioscoop, Olanda 2011 (Brick Awards 2012 GB, progetto vincitore nella categoria«Worldwide Brick»)
Destinazione d'uso Uffici municipali, cinema, ristorazione, parcheggi
Località: Raaks Kwartier Haarlem, NL
Committente: MAB Development Nederland B.V.
Progetto architettonico: Bolles+Wilson Architects
Progetto strutturale: Corsmit Raadgevend Ingenieursbureau B.V.
Progetto paesaggio: Urbis bureau voor Stadsontwerp
Progetto interni (uffici comunali): Döll Architecten
Progetto interni (sale cinematrografiche): Pathé Cinemas
Appaltatore: Dura Vermeer Bouw Haarlemmermeer B.V.
Cronologia: progettazione 2000-2009; realizzazione 2008-2011
Superficie: 18.500 mq
Costo di costruzione: 18,3 milioni di euro
Fotografie: Christian Richters

contentmap_plugin