fbpx
  • Visualizza:
  • Commerciale
  • Pubblico
  • Ospedaliero
  • Religioso
  • Residenziale
  • Scolastico
  • Sportivo
  • Terziario
Germania/Duisburg  
Ortner & Ortner

Nuovo Archivio di Stato

Duisburg, città in cui attualmente vive circa mezzo milione di abitanti, durante la seconda guerra mondiale fu oggetto di pesantissimi bombardamenti da parte degli inglesi: al termine del conflitto la città contò 300 incursioni aeree e circa 6.000 vittime, oltre che la distruzione del centro storico e dell’80% delle residenze.

Una delle prime strutture ricostruite, nel 1950 su progetto di Hans Siegfried Persch, fu lo Schwanentor, un ponte elevatore che consente di superare il fiume Ruhr e collegare il «ricostruito» centro cittadino con il resto della regione. Con le sue quattro torri quadrate di 20 metri, la «Porta dei cigni» ha rappresentato per decenni uno dei segni di riconoscimento della città.

Recentemente si è aggiunto un nuovo simbolo. È stato infatti inaugurato il nuovo Landesarchiv Nordrhein-Westfalen (Archivio Statale della Renania settentrionale-Vestafalia), il più grande Archivio di Stato della Germania e uno dei più capienti d’Europa.

Il complesso, la cui realizzazione è avvenuta in soli tre anni, sorge proprio a ridosso dello Schwanentor, vicino al porto fluviale della città, prossimo al punto in cui il fiume Ruhr confluisce nel Reno, e all’autostrada A40: «gli automobilisti che scorgeranno l’edificio saranno invogliati a visitare l’Archivio e Duisburg» ha dichiarato il Segretario alla Cultura Hans-Heinrich Grosse Brockhoff.

Lo studio di architettura Ortner & Ortner, di Laurids Ortner e Manfred Ortner, con Roland Duda, Christian Heuchel, Harald Lutz, Florian Matzker e Markus Penell, è risultato vincitore dell’ambizioso concorso bandito nel 2007 dal Ministero della Famiglia, Infanzia, Gioventù, Cultura e Sport del più popolato dei sedici Stati federali tedeschi: il risultato è un complesso che integra un vecchio magazzino del 1930 caratterizzato dalla forma compatta e dal pesante rivestimento in mattoni pieni faccia a vista.

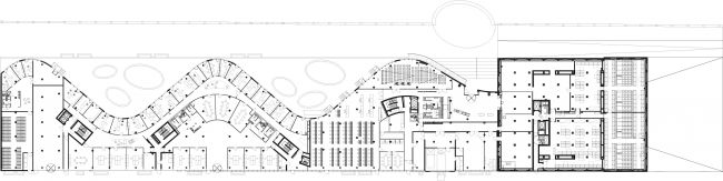
Il nuovo complesso ha una lunghezza di circa 200 metri ed è costituito da due elementi.

Il primo, che ospita l’archivio, è composto da un’emergente torre cieca con tetto a falde alta 76 metri al cui interno troveranno progressivamente posto fino a 148 chilometri di scaffalature; un sofisticato sistema di movimentazione dei documenti consente di svolgere con grande efficienza i compiti di archiviazione e, quindi, preservare efficacemente il patrimonio culturale locale.

Il secondo, che accoglie gli uffici amministrativi per 130 dipendenti, spazi espositivi, sale conferenze e sale di consultazione e lettura, è costituito da un corpo dall’andamento sinuoso di sei piani fuori terra.

Il complesso, il cui ingresso è collocato nell’intersezione tra l’edificio esistente e l’ampliamento, presenta un impianto volumetrico chiaro, immediato e compatto: la sua forte massività è sottolineata dalla scelta di rivestire l’intera struttura con elementi in laterizio faccia a vista. L’opzione, determinata anche dalla volontà di non creare un’interruzione materica con la struttura preesistente, garantisce un’ottima durata e dei costi contenuti di gestione e manutenzione. In particolare, da un punto di vista tecnologico la nuova torre si distingue dal preesistente per il rivestimento realizzato su uno schermo avanzato a montaggio meccanico con elementi cavi in laterizio che possono essere facilmente sostituiti in caso di necessità. L’adozione di elementi in laterizio multi cromatici e la loro disposizione fuori piano genera in facciata un’originale trama geometrica chiaramente identificabile anche da lunga distanza. 

L’assegnazione all’unanimità della vittoria del concorso bandito da Stato federale della Renania settentrionale-Vestafalia, Municipalità di Duisburg e Promotore Immobiliare Kölbl Kruse, è avvenuta nel 2007: «architettura poderosa», «nobile lavoro» e «scultura polarizzante» sono alcuni dei giudizi lusinghieri espressi dai membri della giuria. In effetti la «scultura» ideata da Ortner & Ortner, ben rappresentata in uno dei «ritratti» fatto in polvere di gesso su carta che abitualmente accompagna la presentazione dei progetti (si veda a tale proposito la 13° Mostra Internazionale di Architettura di Venezia), è imponente ma non ingombrante e con il suo profilo prototipico altera armonicamente lo skyline della città.

Adolfo F. L. Baratta
Ricercatore, Università Roma Tre


Scheda tecnica

Oggetto: Archivio si Stato
Località: Duisburg (D)
Committente: Stato federale della Renania settentrionale-Vestafalia, Municipalità di Duisburg e Promotore Immobiliare Kölbl Kruse
Progetto architettonico: Ortner & Ortner
Cronologia: concorso 2007; costruzione 2010-2013
Costo di costruzione: ca. 120 milioni di euro

contentmap_plugin